Baréz und Schuster Architekten Ingenieure Sachverständige
Baréz und Schuster Architekten Ingenieure Sachverständige

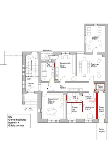
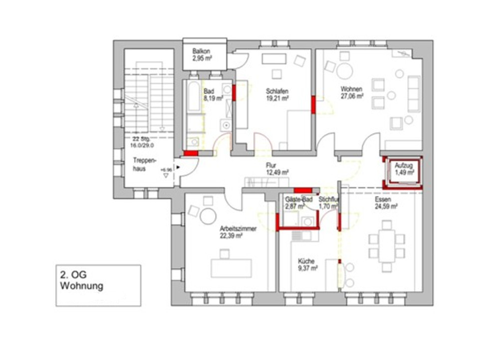
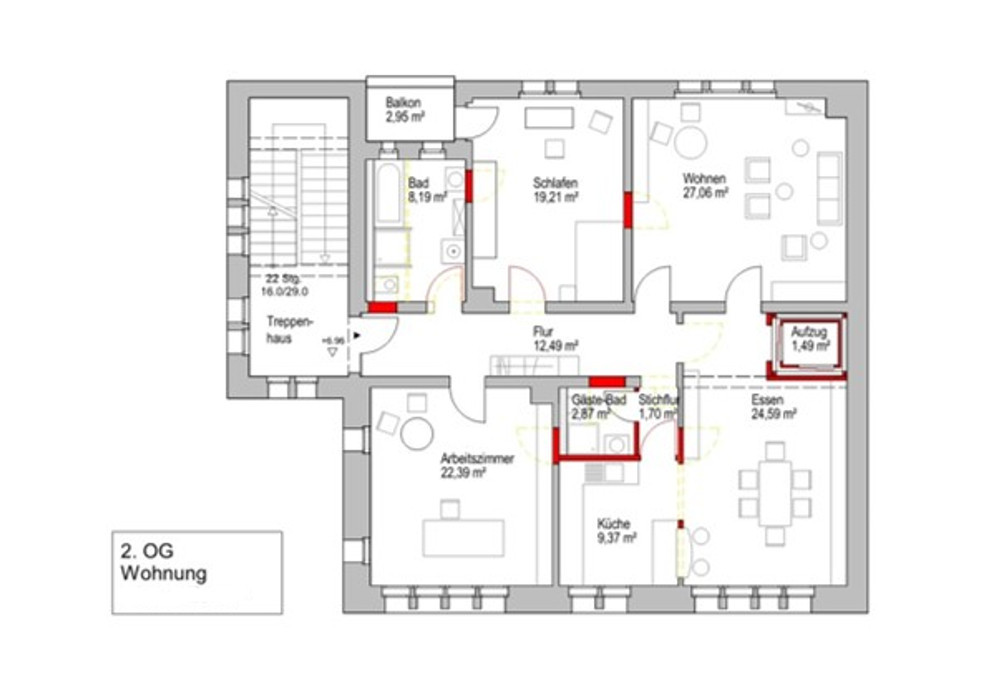
Umstrukturierung und Generalsanierung Pfarrhaus St. Bonifatius

Standort: Karlsruhe

Pfarrhaus Baujahr 1905, Denkmalschutz

Generalsanierung inkl. Erneuerung der technischen Gebäudeausrüstung, Fassadensanierung, Einbau Aufzug, Ausbau Dachgeschoss.

Projekt-Daten

Standort:  Karlsruhe

Fertigstellung:  2021

Bauherr:  Kath. Seelsorgeeinheit Allerheiligen, Pfarrgemeinde St. Bonifatius

Leistungsphasen:  1 - 9